Sarah Sasek

team projects



McDaniel High School

(formerly Madison HS)

Portland, OR

— PROJECT NAME

McDaniel High School


— ROLE

Junior Interior Designer


— DATE

2018-2021


— SIZE

296,000 sf


— FIRMS

Opsis Architecture & DAO



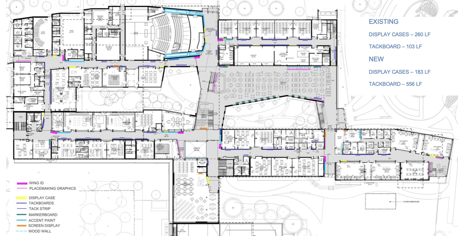
McDaniel was part of the voter approved bond to renovate and restore Portland Public Schools. The design capitalizes on the strong ties to culture within the community and the natural beauty that surrounds the uniquely sloped site. The interior spaces are open, dynamic and flooded with light while the palette is comprised of enduring neutrals balanced with moments of saturated color.  


My role on this project was Junior Interior Designer. The tasks I collaborated on included: color and finish studies, space planning, renderings, Enscape model prep, construction documents (CDs), finish boards, construction administration (CA) tasks such as Architect’s Supplemental Instruction (ASIs), Request for Information (RFIs) and submittal reviews, LEEDv4 innovation credit documentation & submission, furniture plans and finishes. I regularly collaborated with team members, consultants and the client to work through design tasks and challenges.

crossroads – social stair

commons – social stage & west bridge

crossroads – change-maker wall

exterior – science beacon

interior – science beacon study

theatre/auditorium

main gym

finish palette study

corridor paint color study

holistic diagram of elements on corridor walls

carpet scope study – level 1

furniture plan – level 1

furniture finish study

finish board

Western Washington University Multicultural Center


Bellingham, WA

— PROJECT NAME

Western Washington University -

Multicultural Center


— ROLE

Junior Interior Designer


— SIZE

31,000 sf


— FIRMS

Opsis Architecture & 

RMC Architects



WWU Multicultural Center was a renovation that provides a gathering space for students to engage and promote equity and inclusion. The space includes offices and shared working spaces, a library wall and gathering space at reception, a multi-purpose room, classrooms, a kitchen with open social space, restrooms that include a foot bath, a bookstore and main lobby entrance.


My role on this project was Junior Interior Designer. The tasks I collaborated on included: space planning, construction documents (CDs), casework documentation and detailing, furniture space planning, LEEDv4 research of finishes and the design and documentation of a foot bath within one of the single user restrooms. On this project I grew in regards to detailing of casework and restrooms, as well as doing a deep dive into LEEDv4 and the required documentation.


main stair leading to the multicultural center

reception entrance with library wall

kitchen with open gathering space

exterior sun shade

shared work space & zone that highlights connection b/t exterior sun shade and its impact on the interior space

classroom

bookstore

Willamette View

Riverview

Portland, OR

— PROJECT NAME

Willamette View – Riverview


— ROLE

Junior Interior Designer


— SIZE

18,000 sf


— FIRM

Opsis Architecture



WV Riverview is located on a site with sweeping views of the Willamette River. The focus of the design was to create a central hub for gathering. This project included a marketplace, bistro, main dining with bar, a commercial kitchen & multi-use auditorium.


My role on this project was Junior Interior Designer. The tasks I collaborated on included: finish studies, space planning, detailing of the light fixture over the bar, construction documents (CDs) and furniture. I worked closely with the Senior Interior Designer on the project to better understand the process of FFE. Together with the client, we selected furniture pieces, coordinated sit-tests for the end users and worked collaboratively on finish selections. With guidance, I created the furniture package which included space planning, storage studies, furniture finish selections, client meetings and presentations, and final furniture packages submitted to the vendors.

Riverview entrance

Riverview patio

Riverview main dining

Riverview bar

Elk Rock Bistro

multi-use auditorium

furniture & finish plan

finish palette

furniture palette

bar stool

bistro dining chair

main dining booth

outdoor furniture



Willamette View

Terrace Balcony Homes


Portland, OR

— PROJECT NAME

Willamette View - 

Terrace Balcony Homes


— ROLE

Junior Interior Designer


— DATE

2017


— SIZE

91,075 sf


— FIRMS

Opsis Architecture



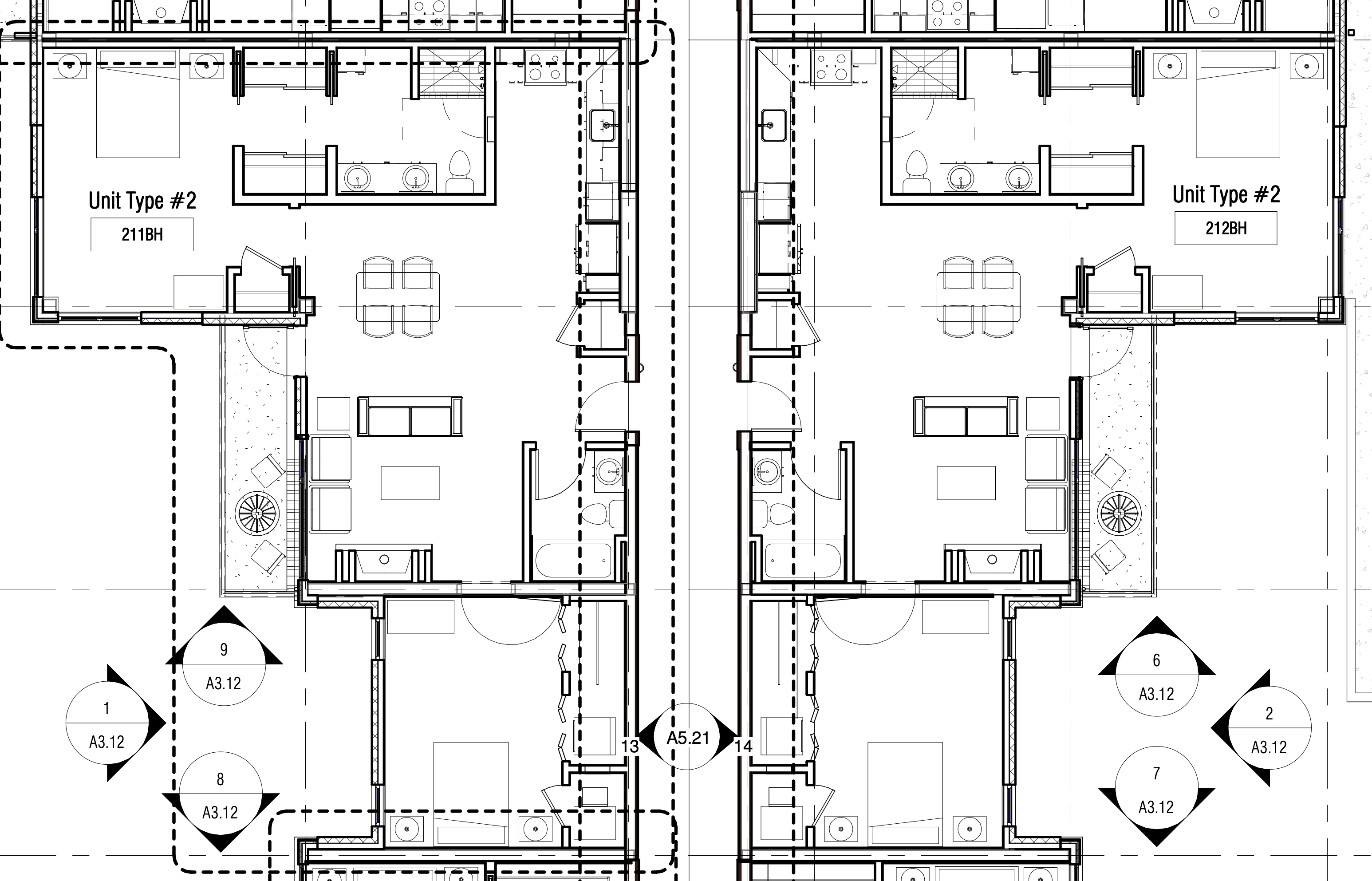
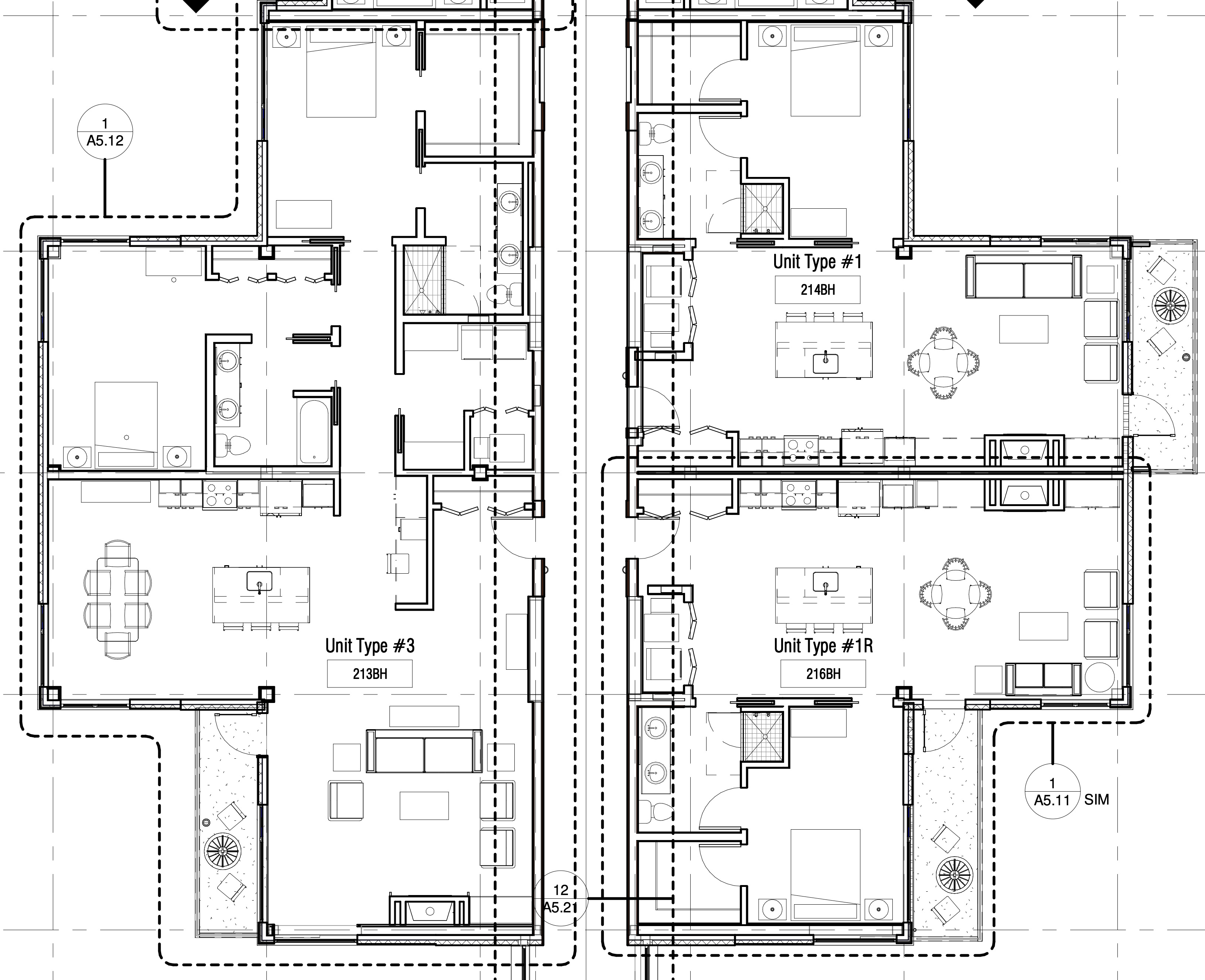
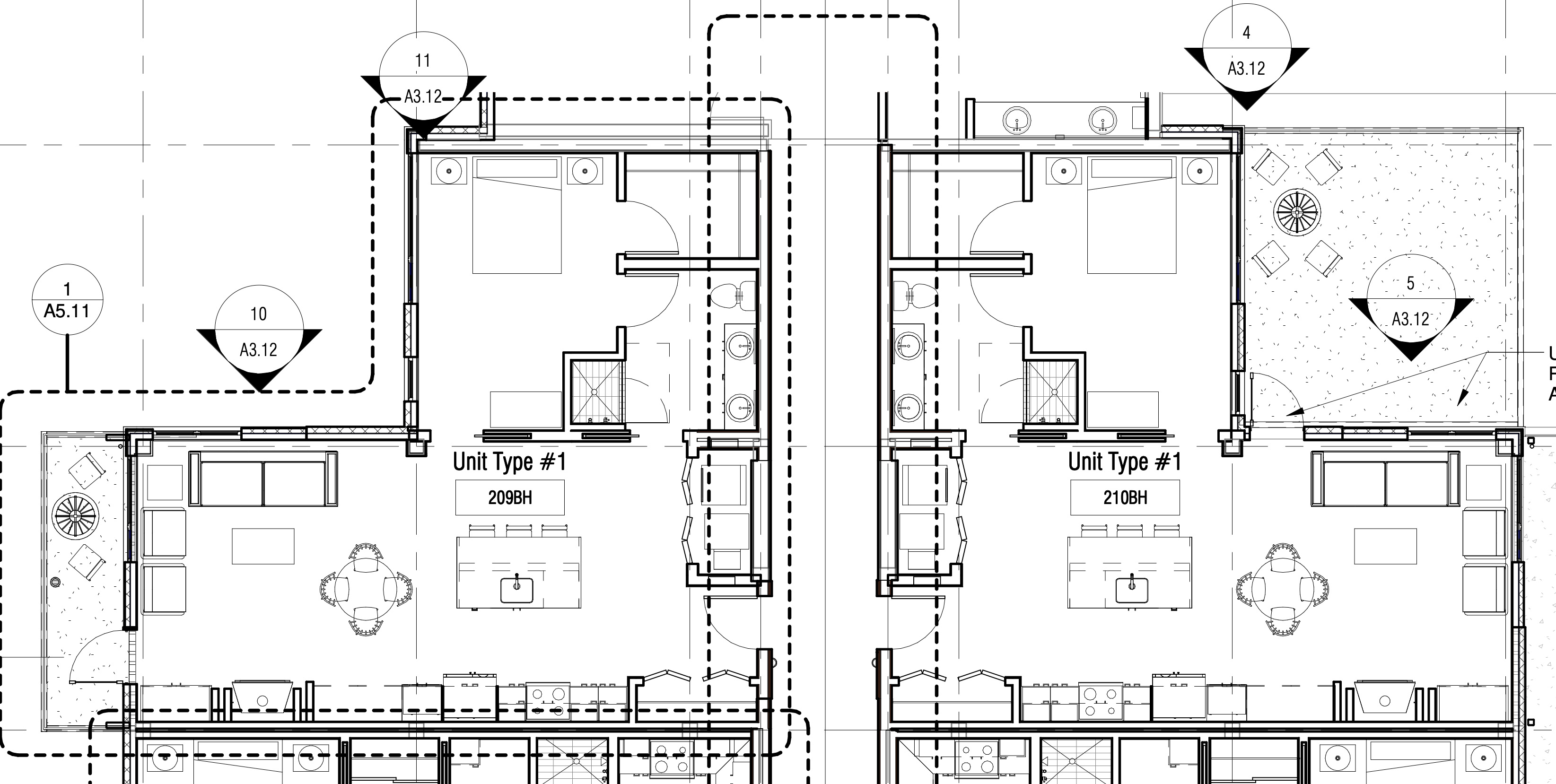
WV Terrace Balcony Homes was an update to the residential units on campus. The existing building was converted into modern one and two bedroom units that included a full kitchen that was open to the living space, a balcony, bedroom plus storage and ADA accessible restrooms.


My role on this project was Junior Interior Designer. The tasks I collaborated on included: space planning, construction documents (CDs) and finish boards. As this was early in my design career, I was mentored by the Senior Interior Designer on the project; her focus was for me to understand the circular language of construction documents (CDs), documenting the connectivity of elevations and casework details and she had me verify ADA code compliance throughout the units. This project taught me the amount of thoughtful detail that goes into documenting a design.

unit type 1 – 1 bed/1 bath

unit type 2 – 2 bed/2 bath

unit type 3 – 2 bed/2 bath

May Street

Elementary School


Hood River, OR

— PROJECT NAME

May St. Elementary School


— ROLE

Junior Interior Designer


— DATE

2017


— SIZE

70,000 sf


— FIRMS

Opsis Architecture



May St. Elementary School was a new build in the heart of Hood River. The design goal was to create a school that minimized long, straight corridors and maximized community engagement. The interior concept was classroom neighborhoods with each grade having a neighborhood entrance and shared common space surrounded by individual classrooms. The design intent was to facilitate community learning within each grade level.


My role on this project was Junior Interior Designer. The tasks I collaborated on included: space planning and construction documents (CDs). The Senior Interior Designer on this project mentored me through space planning and documenting of restrooms, documenting interior elevations, casework details and finish details, as well as the Finish Materials Legend and Finish Schedule. I gathered a greater understanding of the logistics of constructions documents and how the drawing sheets communicate with the Finish Materials Legend and Finish Schedule.

stair at main entrance

commons

classroom neighborhood entrance

neighborhood shared space

neighborhood shared space

nook corner in classrooms

library

music

classroom layouts surrounding a shared space